65 Woodland Way
3 BEDROOM · 2 BATH · 1298 SQFT LIST PRICE $554900
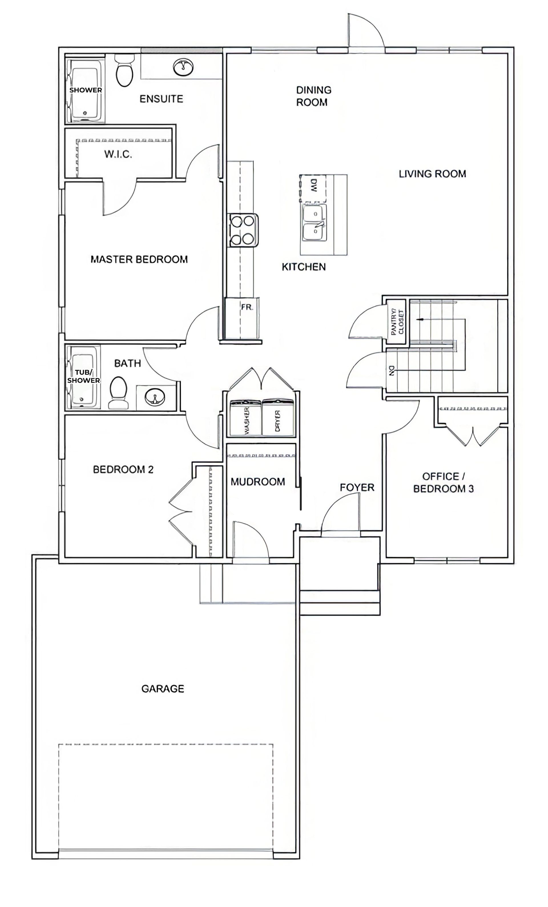
Welcome to 65 Woodland Way in Parkview Pointe, West St Paul! This thoughtfully designed 1298 SqFt bungalow, built by Connection Homes is sure to impress! The main floor boasts 3 large bedrooms, MAIN FLOOR LAUNDRY, & 2 full bathrooms including the master bedroom ensuite! The main floor plan offers a lovely open-concept plan w/massive great room, spacious dining room, & custom kitchen w/soft-close hardware, beautiful cabinets, quartz counters, island & food storage closet/pantry. The large mudroom leads into the double-attached garage. The price includes the concrete driveway, central air, full height concrete foundation on piles, & new home warranty! Call today for more info!
Have a question?
We’re here to answer all your questions. Don’t hesitate to reach out and talk to us to find out everything you wish to know about the property, the neighborhood and anything in between.

