48 Ash Cove
4 BEDROOM · 2.5 BATH · 1926 SQFT LIST PRICE $833400
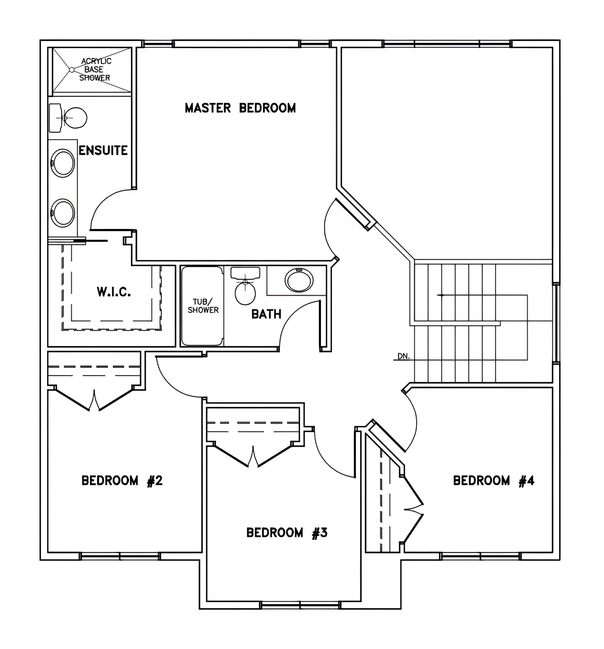
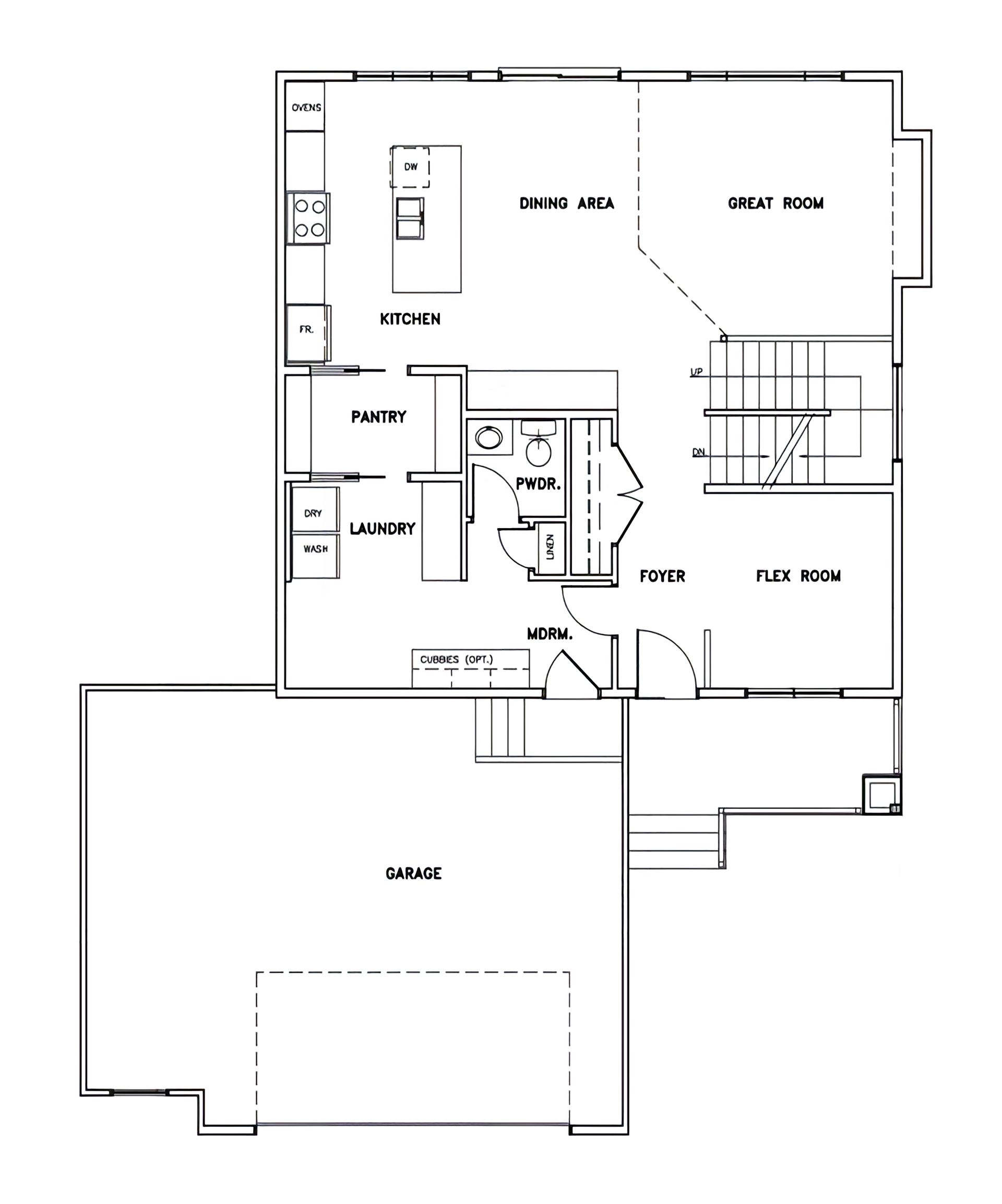
Welcome to 48 Ash Cove in Forest Grove Estates, South Headingley’s most desirable new development! Situated on a 70x170 lot, This phenomenal 1926 sqft 2-storey family home will offer 4 BEDROOMS + a main floor flex room (can be a closed-off office) & the open-to-below over the great room! HUGE 28x25 oversized double-attached garage w/workshop area & large covered concrete front porch! The main floor offers a main floor laundry room w/laundry cabinets, mudroom, a walk-through food storage pantry, large kitchen with quartz counters, custom cabinetry, soft close hardware & a spacious island! The main floor also offers a ton of LED potlights, a two-piece bathroom, large dining room, and family-sized great room (open to above)! Upstairs you’ll find a full 4-pc bath & 4 large bedrooms including the spacious master bedroom w/4-pc ensuite bath, double vanity, tile shower & large walk-in closet! Price includes: piled foundation, GST, concrete drive, A/C, quartz counters throughout, tiled shower in ensuite & new home warranty! Call today for more info and to set up an appointment at our showhome to discuss more details!
Have a question?
We’re here to answer all your questions. Don’t hesitate to reach out and talk to us to find out everything you wish to know about the property, the neighborhood and anything in between.

