45 Moffitt Bay
3 BEDROOM · 2 BATH · 1537 SQFT LIST PRICE $699900
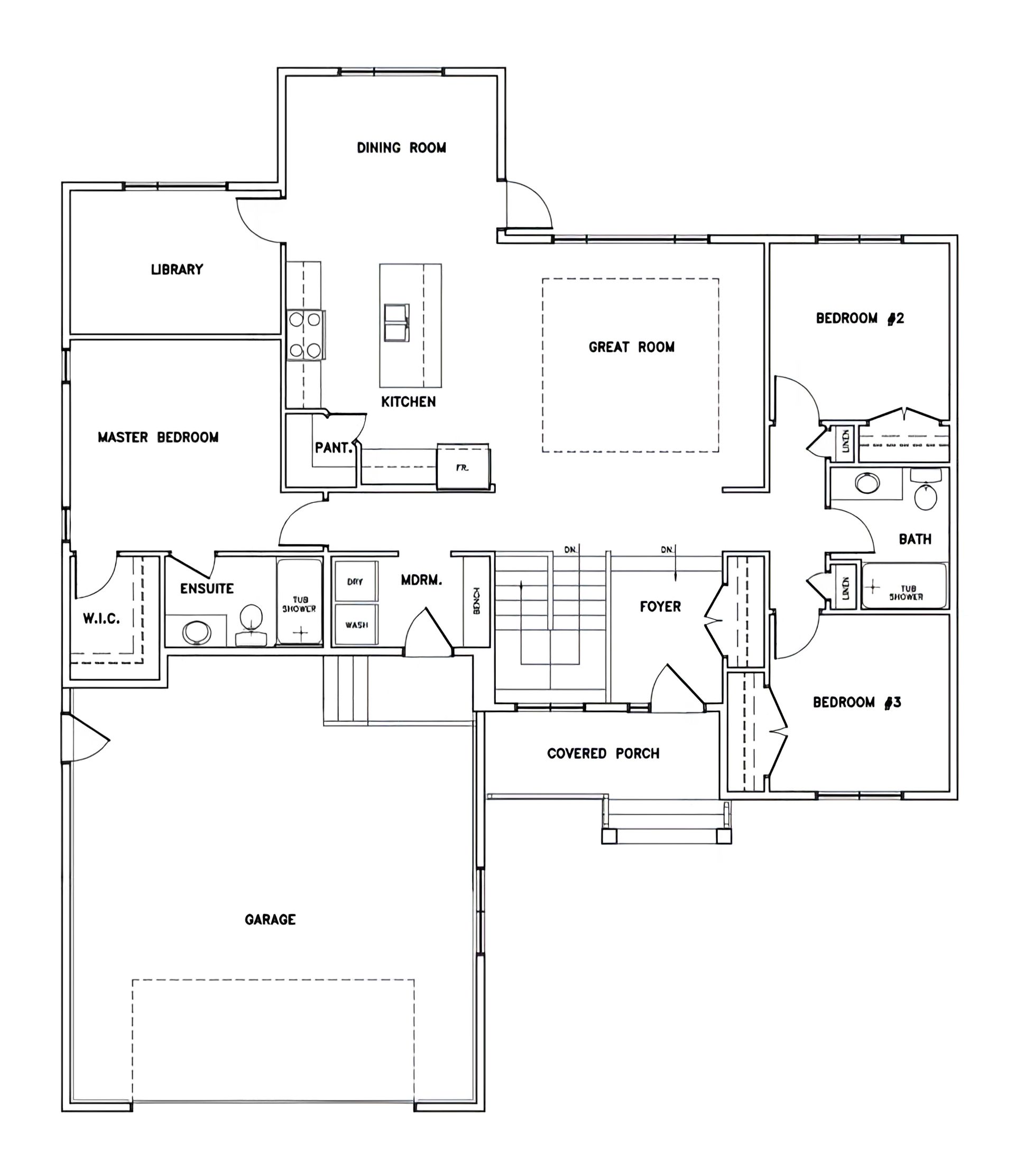
Welcome to Moffitt Bay in Taylor Farm! This 1537 SqFt bungalow, to-be-built by Connection will be a sight to behold! At this stage, you can completely customize this plan & all materials. Lets set up a meeting at our showhome in Headingley to discuss the details & your needs! This specific plan will feature an open concept great room plan w/large kitchen, living room & family-sized dining room at the back of the home. It offers a split-bedroom layout with the primary bedroom on one side & the 2nd/3rd bedrooms on the other side, with a main floor laundry/mudroom & a separate office at the rear of the home (can be incorporated into the primary bedroom). 24x24 attached garage, concrete driveway, home built on piles, central air, new home warranty all included! Call today for more info! Always happy to help!
Have a question?
We’re here to answer all your questions. Don’t hesitate to reach out and talk to us to find out everything you wish to know about the property, the neighborhood and anything in between.

