446 Sand Piper Trail N
3 BEDROOM · 2 BATH · 1281 SQFT LIST PRICE $489900
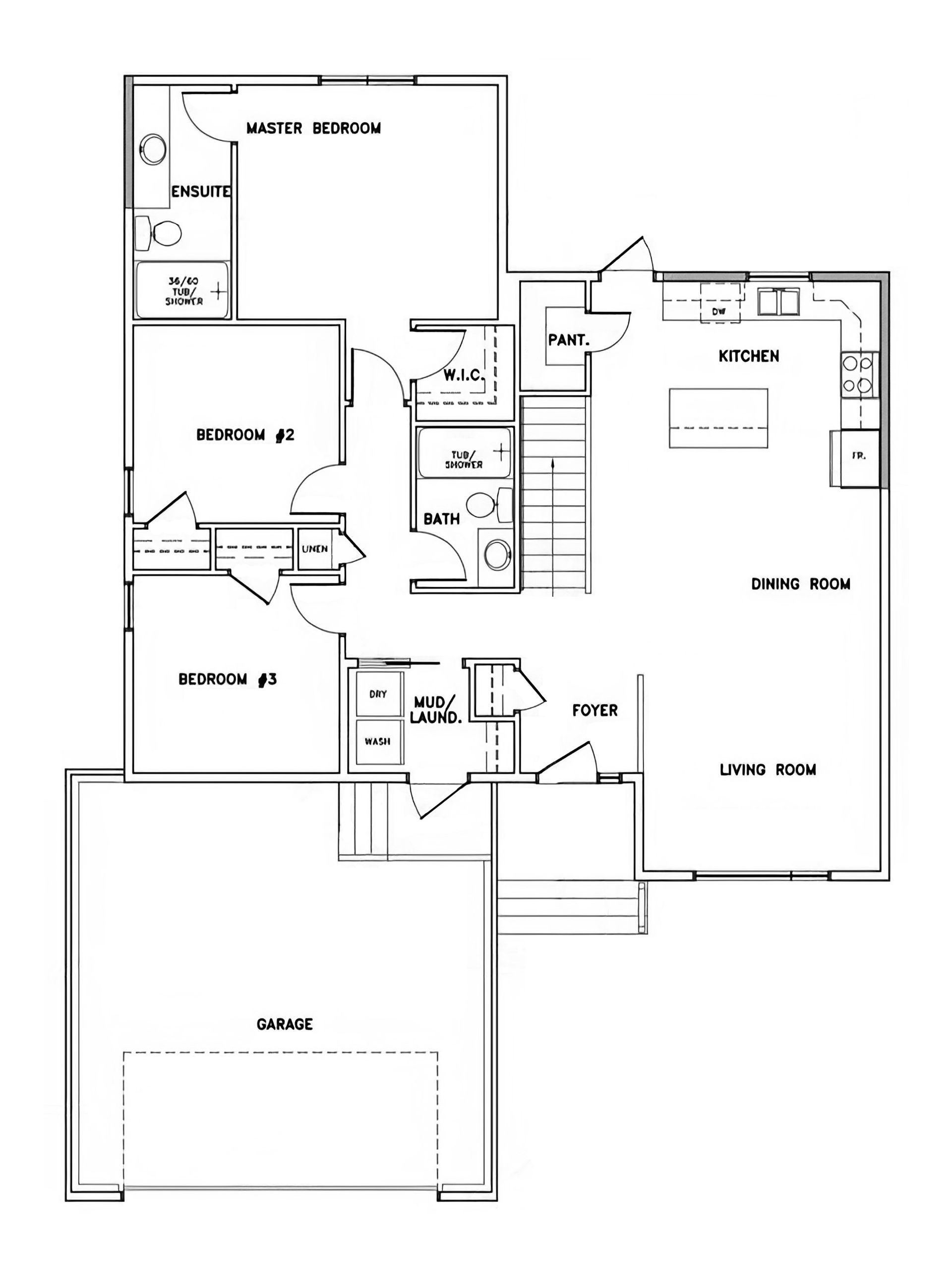
Welcome to 446 Sand Piper Trail North in Landmark East, Landmark MB's most desirable new development! Built by Connection Homes, This BRAND NEW 3 bedroom home is perfect for the growing family & is loaded w/features! As you enter the home, you'll be greeted by a large front foyer w/coat closet, a fabulous open concept floor plan incl: durable laminate flooring, 9ft main floor ceiling, pot lights, & loads of windows that let in a ton of natural light. The main floor also boasts a large dining area, modern & functional kitchen w/island, food storage pantry, soft close drawers, quartz countertops & tons of counter space! The living room is the perfect size for entertaining. Down the hall you'll find a mud room off of the double attached garage w/main floor laundry, 4-pc bath, & 3 large beds incl the master bedroom w/walk-in closet & full ensuite bath! Full height concrete foundation on piles, concrete driveway, central a/c, & more! Call today for more info & to set up an apt to discuss everything in more detail! You can customize this plan & the finishes the way you want. We also have other plans available & can work with you to accommodate your needs! Always happy to help!
Have a question?
We’re here to answer all your questions. Don’t hesitate to reach out and talk to us to find out everything you wish to know about the property, the neighborhood and anything in between.

