40 Stony Lane

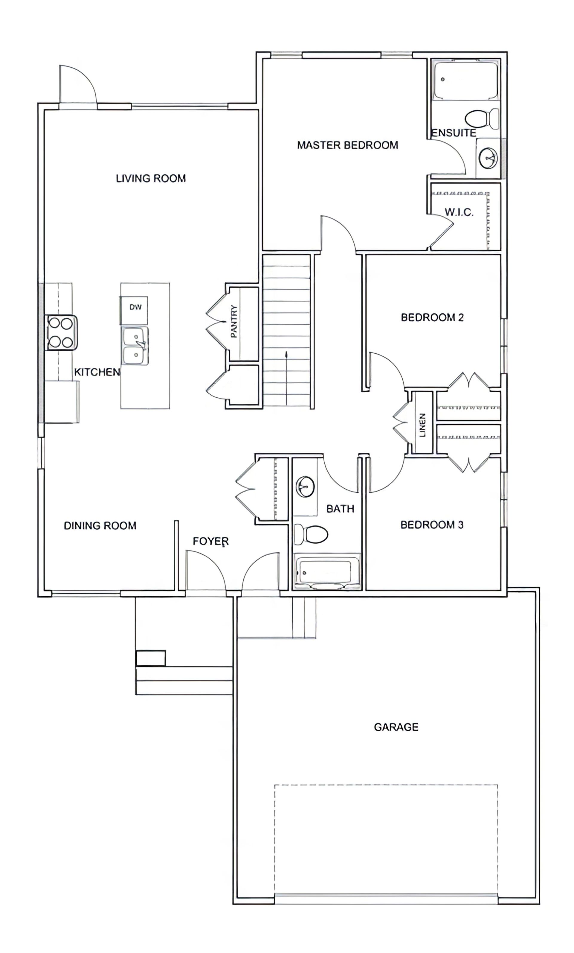
3 BEDROOM · 2 BATH · 1255 SQFT    LIST PRICE $495000

40 Stony Lane in Mountain Ridge Park, Stony Mountain MB! 1255 SqFt 3 bed, 2 bath bungalow built by Connection Homes! Stunning open concept design with a large dining room, galley-style kitchen w/large island, quartz tops in the kitchen, soft-close hardware, custom cabinetry, & a large living room at the back of the house w/9ft main floor ceilings! Down the hall, you'll find a lovely 4pc bath, access to the 22x22 double attached garage, and 3 large bedrooms incl the master bedroom w/walk-in closet & 3pc ensuite bath! New Home warranty incl & MORE! Come visit our showhome for more info & FALL IN LOVE! Call today!

Have a question?

We’re here to answer all your questions. Don’t hesitate to reach out and talk to us to find out everything you wish to know about the property, the neighborhood and anything in between.

Ask A Question