37 Harvest Crescent

2 BEDROOM · 2 BATH · 1065 SQFT    LIST PRICE $463700

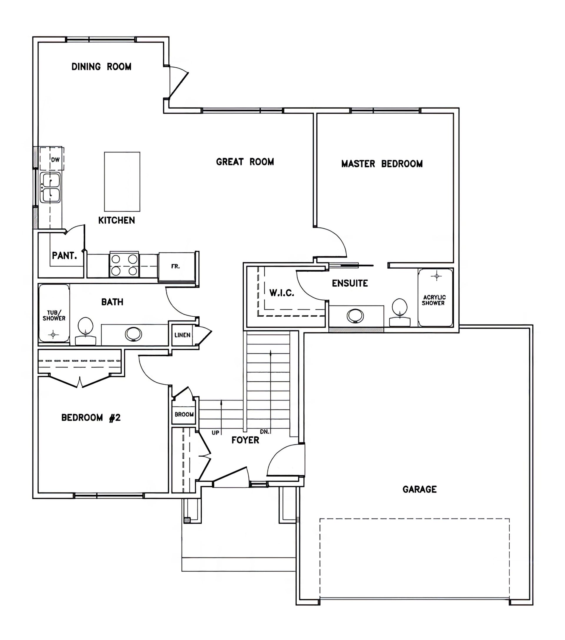
Welcome to 37 Harvest Crescent in Oak Terrace, Lorette MB's desirable new development! Built by Connection Homes, This beautiful 2 bedroom, 2 bath bungalow home will surely impress! Phenomenal open concept plan with the great room, kitchen & dining room all open to each other at the back of the home! The focal point of the home will be the custom kitchen - which includes a large island, quartz tops, soft close cabinets, corner pantry, double sink w/window above it on the outside wall & tons of cabinet/counter space! The main floor also features a full 4-pc bath, & 2 large bedrooms (split bedroom plan) incl the master bedroom w/ensuite bath & walk-in closet. Attention to detail will be evident with durable laminate flooring, smooth painted 9ft ceiling, full-length vanity mirrors, LED pot lights & MORE! Price includes the 5 Year New Home Warranty, the lot, GST, piled foundation, concrete driveway, ¢tral air! Beat the bidding wars & get into an affordable brand new home! Call today for more info! Always happy to help!

Have a question?

We’re here to answer all your questions. Don’t hesitate to reach out and talk to us to find out everything you wish to know about the property, the neighborhood and anything in between.

Ask A Question