25 Stony Lane
3 BEDROOM · 2 BATH · 1533 SQFT LIST PRICE $552900
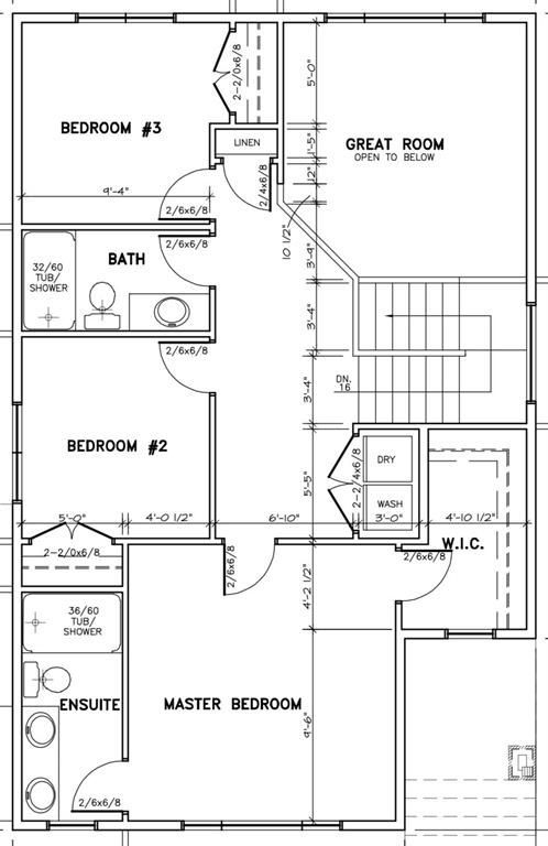
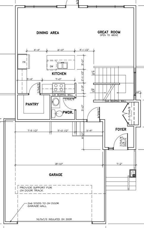
Welcome to 25 Stony Lane in Stony Mountain MB! This 1533 SqFt 2-storey home is situated on a large fully serviced lot, on a quiet street & to-be built by Connection Homes! As you enter, you are greeted by a large front foyer w/coat closet, a 2-pc powder room & access to the 22x22 double attached garage! The main floor has a lovely open concept floor plan w/large custom kitchen, dining area w/patio door to the backyard & a large living room, which are all perfect for the growing family & entertaining! The kitchen boasts a large island, custom cabinetry w/soft-close hardware, an abundance of cabinet space, quartz counters & a walk-in food storage pantry. The main floor features 9ft ceilings, LED potlights, durable laminate flooring & more! Upstairs you will find the 2nd floor laundry, a full 4-pc bath & 3 large bedrooms incl the master bedroom w/full ensuite bath & massive walk-in closet! The price includes concrete driveway, piled foundation, new home warranty, ¢tral air! Call today for more info & to set up an appointment to discuss the details!
Have a question?
We’re here to answer all your questions. Don’t hesitate to reach out and talk to us to find out everything you wish to know about the property, the neighborhood and anything in between.

