154 Ramona Gallos Way
4 BEDROOM · 3 BATH · 1675 SQFT LIST PRICE $622650
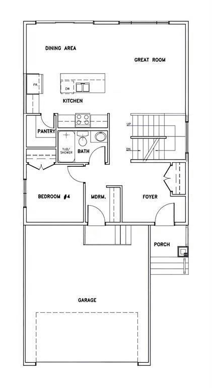
Welcome to 154 Ramona Gallos in Templeton Gates! This stunning 2-storey home custom-built by Connection Homes will be sure to impress! The main floor boasts a large front foyer w/coat closet, mudroom with access to the double attached garage, a full 4pc bathroom & a 4th bedroom on the main floor! Separate/side entrance included! The kitchen will feature soft close hardware, quartz countertops, high quality custom cabinetry, island & food storage pantry! The dining room and great room are very spacious, perfect for the growing family! Upstairs you’ll find the 2nd floor laundry room, a large loft, full 4pc bath & 3 large bedrooms including the generously-sized master bedroom with walk-in closet & 3pc ensuite bath w/standing shower! This home will be situated on a large 170 ft Deep, South-facing backyard lot on the pond! Call today to book your appointment to discuss building with Connection Homes! Always happy to help!
Have a question?
We’re here to answer all your questions. Don’t hesitate to reach out and talk to us to find out everything you wish to know about the property, the neighborhood and anything in between.

