13 Oak Meadow Drive
3 BEDROOM · 2 BATH · 1255 SQFT LIST PRICE $539900
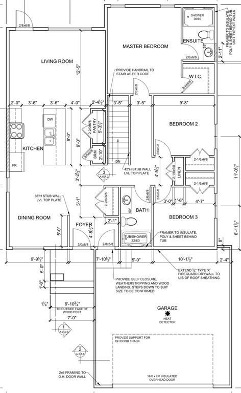
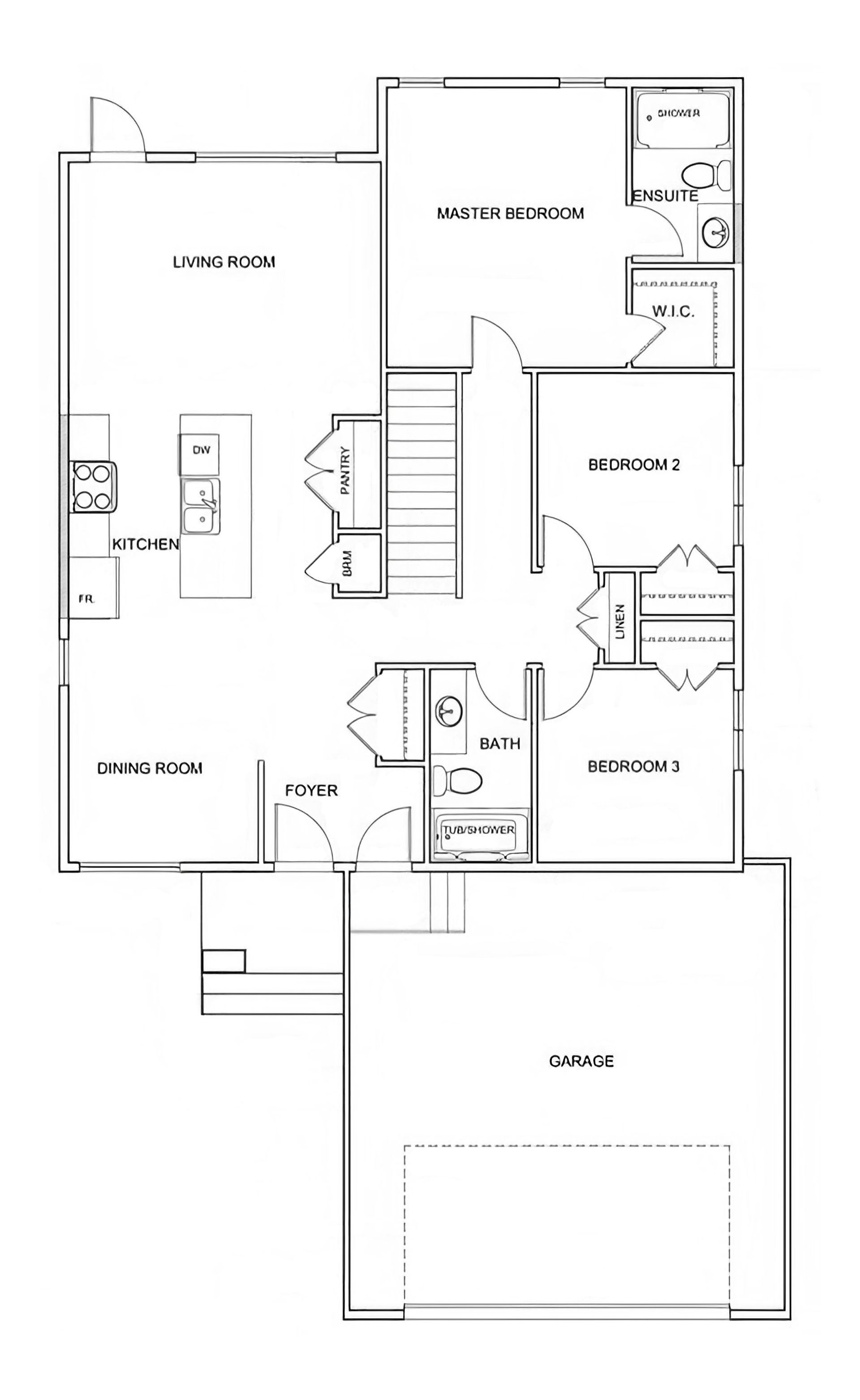
13 Oak Meadow Drive in Oakbank MB: 1255 SqFt 3 bed/2 bath bungalow on a 70x130 fully serviced lot! Currently under construction by Connection Homes. As you enter this plan you are greeted by a large front foyer, coat closet, & access to the 22x22 double attached garage. The main floor features a front-to-back open concept floor plan, 9ft ceilings, large dining area, modern galley kitchen w/custom cabinets, soft close hardware, quartz countertops, & a large great room/living room at the back of the house. Down the hall, you'll find a full 4-pc bath & 3 large bedrooms including the spacious master bedroom w/walk-in closet & full ensuite bathroom! The price incl the GST, lot, concrete driveway, central air, foundation built on a piled foundation, & a new home warranty! Call for more information, Always happy to help!
Have a question?
We’re here to answer all your questions. Don’t hesitate to reach out and talk to us to find out everything you wish to know about the property, the neighborhood and anything in between.

