101 Lynne Lane
3 BEDROOM · 2 BATH · 1364 SQFT LIST PRICE $627200
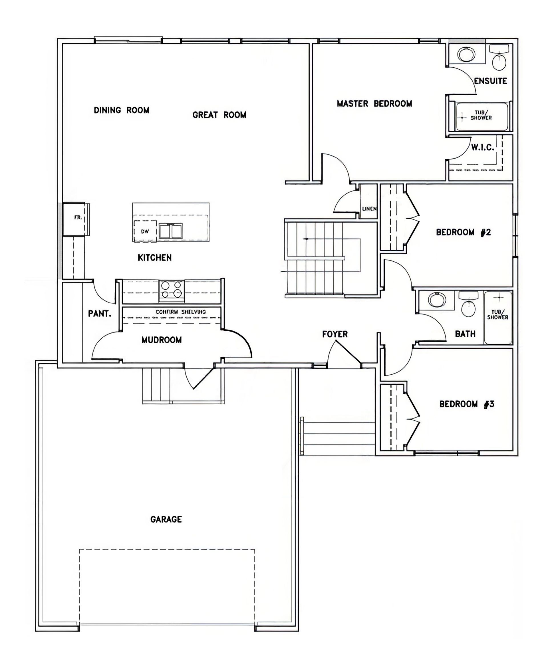
Welcome to Grande Pointe Meadows in Grande Pointe MB! Only 8 mins to Sage Creek! This well-appointed 1364 SqFt Bungalow to-be-built by CONNECTION HOMES will be sure to impress! A large front foyer w/access to the mudroom, double-attached garage & walk-through butlers pantry (perfect for bringing groceries right from the garage) are all features in this floor plan. The main floor boasts a gorgeous open-concept plan incl the custom kitchen w/large island, custom soft close cabinets, quartz countertops, LED potlights, durable laminate flooring, large dining area, 9ft ceilings, & a spacious great room at the rear of the home (great for entertaining)! The main floor also boasts a full 4-pc bath, & 3 bedrooms incl the large master bedroom w/walk-in closet + full ensuite bath! WOW! This home is built-to-last w/full-height concrete foundation on piles, PVC windows, central a/c, high-eff gas furnace, & sump-pump! Price incl lot, GST, concrete drive & new home warranty! Call today for more info & customize this home the way you want!
Have a question?
We’re here to answer all your questions. Don’t hesitate to reach out and talk to us to find out everything you wish to know about the property, the neighborhood and anything in between.

